NEUBAU
SANIERUNG
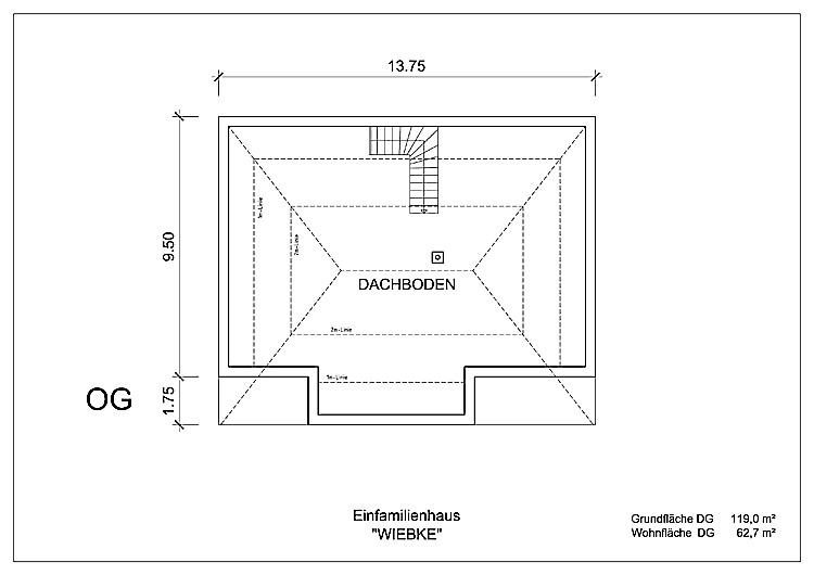
Einfamilienhaus
"WIEBKE"
EG 113,8 m²
DG 62,7 m²
GESAMT 176,5 m²
KONTAKT
STARTSEITE
PARTNER